Budaörs
Eladó Ház
Újépítésű projekt
NYUGALOM PROJEKT
157 m2
269.900.000 Ft
338452
Budaörs - Eladó Ház
KERTVÁROSI CSALÁDI HÁZ /A
Leírás
KERTVÁROSI CSALÁDI HÁZ /A
Budaörs kedvelt, kertvárosias részén 157 nm-es (nettó 155 nm) belső kétszintes, amerikai konyhás nappali + 5 szobás + 3 fürdőszobás családi ház 269,9 M Ft-ért eladó. A házhoz 470 nm saját kert tartozik.
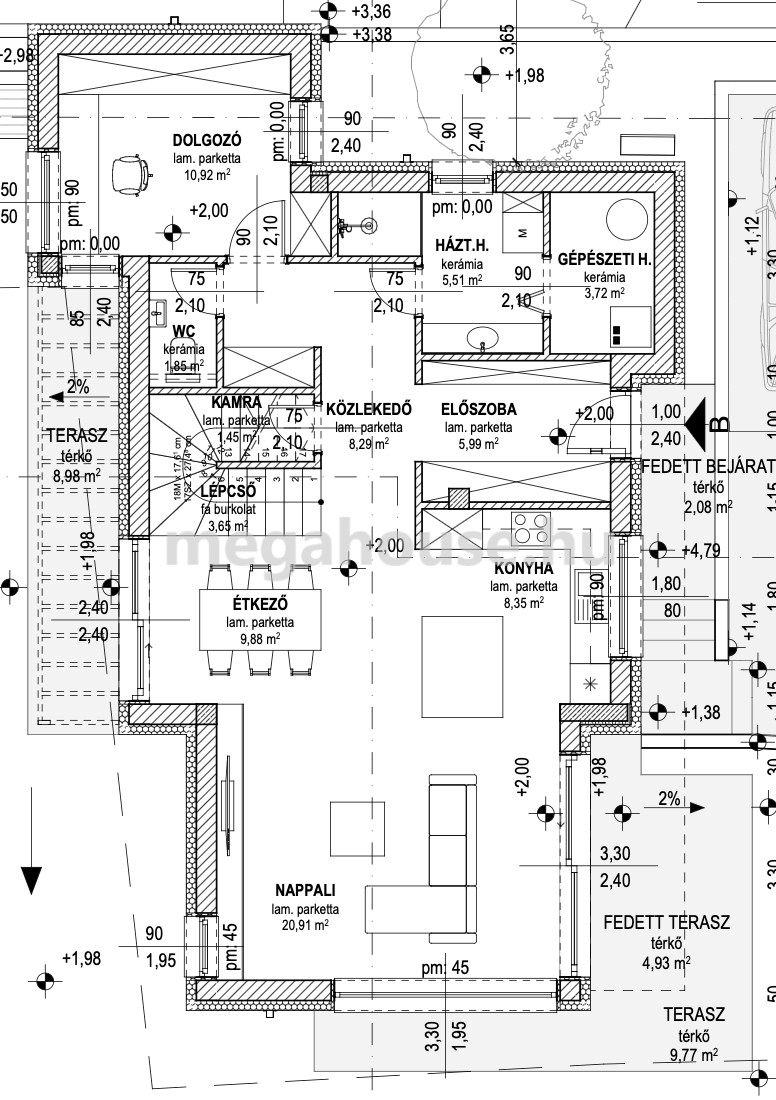
FÖLDSZINT
A házba a tágas, gardróbszekrényes előtérbe érkezünk. A bejárati ajtótól jobbra eső részen a vendég WC és zuhanyzó, a háztartási- és a gépészeti helyiség, illetve egy szoba található. A bejárattól balra a kifejezetten tágas (összesen 40 nm-es) amerikai konyhás nappali. A nappaliból és a szobából is ki lehet a teraszra jutni, onnan pedig a kertbe.
A nappali K-i tájolású, kellemesen napsütéses nemcsak a lakótér, de a terasz és a kert is.
Az emeletre a bejárattal szemben induló lépcső visz, amely alatt egy helyes és praktikus kis kamra húzódik.
A földszint alapterülete 80 nm + terasz.
EMELET
Négy szoba, 2 fürdőszoba és egy gardrób van az emeleten. Az egyik szoba rendelkezik egy klassz, D-i tájolású erkéllyel.
Az emelet alapterülete 75 nm + 5,3 nm erkély.
PARKOLÁS
2 db felszíni- és 1 db vendégbeálló. A beállók árát a vételár tartalmazza.
MŰSZAKI JELLEMZŐK – CSAK VÁZLATOSAN
- A teherhordó főfalak kerámia 30-cm vastag (Porotherm X-therm dryfix) okostéglából készül
- Monolit vasbeton födémrendszerek, áthidalók, pillérek
- Rehau antracit/fehér nyílászárók, elektromos árnyékolók
- 15 cm-es grafitos dryvit rendszer és 30-cm vastag tetőszigetelés
- Hőszivattyús hűtés és fűtés, HMV, ICON szobánkként vezérlés
- 3x16A nappali áram - hálózatfejlesztés kérhető, H tarifa rendelhető
- Kültéri mészkőburkolatok
- Támfalak
- Aereco hővisszanyerős szellőztető rendszer az egész épületben.
EGYÉB JELLEMZŐK
- D-K-i tájolás
- Az épület korszerű anyagokból készül
- Ingatlan megközelítése aszfaltozott utcán
KÖRNYÉK, INFRASTRUKTÚRA
Kellemes családi házas környezet, aszfaltozott utcák, kitűnő tömegközlekedés.
Nem csak általános iskolák vannak a közelben, de a gimnázium is szinte sétatávolságra. A budaörsi bevásárlóközpontok autóval csupán néhány percre.
A burkolatok, szaniterek és a beltéri ajtók választhatók.
Céges kivitelezés, áfa visszaigénylés, illetékmentesség igénybe vehető.
Átadás: 2026. december
Ajánlom akár 3-4 gyerekes családoknak is.
Bővebb információért várom megtisztelő hívását.
Paraméterek
Paraméterek
| Település: | 2040 Budaörs |
| Tranzakció típusa: | Eladó |
| Ingatlan típusa: | Ház / Családi ház |
| Alapterület: | 157 m2 |
| Szobaszám: | 6 + ½ |
| Építés éve: | 2025 |
| Költözhető: | 1 évnél később |
| Szerkezet: | Tégla ház |
| Telek terület: | 800 m2 |
| Állapot: | Újépítésű |
| Szintek száma az épületben: | 2 szintes |
| Fűtés: | Hőszivattyú |
| Wc és fürdőszoba: | Külön is egyben is |
| Erkély: | Igen |
| Erkély mérete: | 10 m2 |
| Terasz: | 10 m2 |
| Kilátás: | Panorámás, Kertre, parkra néző |
| Tájolás: | délkelet |
| Parkolás: | 1 állásos garázs |
| Parkolás benne van az árban: | Igen |
| Extrák: | Amerikai konyhás, Jogilag újépítésű, Tehermentes, Terasz, Alacsony rezsi |
Kapcsolati adatok
Érdeklődjön az ingatlanról, e-mailben!
Bevezetés
A Luxusingatlan Kft. (2040 Budaörs, Budapesti út 108. , adószám: 14311499-1-13 , cégjegyzékszám: 13-09-120088 ) (a továbbiakban: Szolgáltató, adatkezelő) alá veti magát a következő tájékoztatónak.
Az információs önrendelkezési jogról és az információszabadságról szóló 2011. évi CXII. törvény 20. § (1) kimondja, hogy az érintettel (jelen esetben a weboldal-használókkal és az ügyfelekkel a továbbiakban: felhasználó) az adatkezelés megkezdése előtt közölni kell, hogy az adatkezelés hozzájáruláson alapul vagy kötelező.
Az érintettet az adatkezelés megkezdése előtt egyértelműen és részletesen tájékoztatni kell az adatai kezelésével kapcsolatos minden tényről, így különösen az adatkezelés céljáról és jogalapjáról, az adatkezelésre és az adatfeldolgozásra jogosult személyéről, az adatkezelés időtartamáról.
Tájékoztatni kell az érintettet az Info tv. 6. § (1) bekezdése alapján arról is, hogy személyes adat kezelhető akkor is, ha az érintett hozzájárulásának beszerzése lehetetlen vagy aránytalan költséggel járna, és a személyes adat kezelése
-
az adatkezelőre vonatkozó jogi kötelezettség teljesítése céljából szükséges, vagy
-
az adatkezelő vagy harmadik személy jogos érdekének érvényesítése céljából szükséges, és ezen érdek érvényesítése a személyes adatok védelméhez fűződő jog korlátozásával arányban áll.
A tájékoztatásnak ki kell terjednie az érintett adatkezeléssel kapcsolatos jogaira és jogorvoslati lehetőségeire is.
Ha az érintettek személyes tájékoztatása lehetetlen vagy aránytalan költséggel járna (mint például jelen esetben egy weboldalon, vagy az ügyfelek felé a telefonhívások alkalmával), a tájékoztatás megtörténhet az alábbi információk nyilvánosságra hozatalával is:
e) az adatok megismerésére jogosult lehetséges adatkezelők személye,
f) az érintettek adatkezeléssel kapcsolatos jogainak és jogorvoslati lehetőségeinek ismertetése, valamint
g) ha az adatkezelés adatvédelmi nyilvántartásba vételének van helye, az adatkezelés nyilvántartási száma.
Értelmező fogalmak
-
érintett/Felhasználó: bármely meghatározott, személyes adat alapján azonosított vagy - közvetlenül vagy közvetve - azonosítható természetes személy;
-
személyes adat: az érintettel kapcsolatba hozható adat - különösen az érintett neve, azonosító jele, valamint egy vagy több fizikai, fiziológiai, mentális, gazdasági, kulturális vagy szociális azonosságára jellemző ismeret -, valamint az adatból levonható, az érintettre vonatkozó következtetés;
-
adatkezelő: az a természetes vagy jogi személy, illetve jogi személyiséggel nem rendelkező szervezet, aki vagy amely önállóan vagy másokkal együtt az adatok kezelésének célját meghatározza, az adatkezelésre (beleértve a felhasznált eszközt) vonatkozó döntéseket meghozza és végrehajtja, vagy az általa megbízott adatfeldolgozóval végrehajtatja;
-
adatkezelés: az alkalmazott eljárástól függetlenül az adatokon végzett bármely művelet vagy a műveletek összessége, így különösen gyűjtése, felvétele, rögzítése, rendszerezése, tárolása, megváltoztatása, felhasználása, lekérdezése, továbbítása, nyilvánosságra hozatala, összehangolása vagy összekapcsolása, zárolása, törlése és megsemmisítése, valamint az adatok további felhasználásának megakadályozása, fénykép-, hang- vagy képfelvétel készítése, valamint a személy azonosítására alkalmas fizikai jellemzők (pl. ujj- vagy tenyérnyomat, DNS-minta, íriszkép) rögzítése;
-
adatfeldolgozás: az adatkezelési műveletekhez kapcsolódó technikai feladatok elvégzése, függetlenül a műveletek végrehajtásához alkalmazott módszertől és eszköztől, valamint az alkalmazás helyétől, feltéve hogy a technikai feladatot az adatokon végzik;
-
adatfeldolgozó: az a természetes vagy jogi személy, illetve jogi személyiséggel nem rendelkező szervezet, aki vagy amely az adatkezelővel kötött szerződése alapján - beleértve a jogszabály rendelkezése alapján történő szerződéskötést is - adatok feldolgozását végzi;
-
adatvédelmi incidens: személyes adat jogellenes kezelése vagy feldolgozása, így különösen a jogosulatlan hozzáférés, megváltoztatás, továbbítás, nyilvánosságra hozatal, törlés vagy megsemmisítés, valamint a véletlen megsemmisülés és sérülés.
Üzenetküldés, kapcsolatfelvétel a weboldalon
-
Az információs önrendelkezési jogról és az információszabadságról szóló 2011. évi CXII. törvény 20. § (1) bekezdése alapján, meg kell határozni a weboldalon történő üzenetküldés, kapcsolatfelvétel, mint adatkezelések körében a következőket:
a) az adatgyűjtés ténye,
b) az érintettek köre,
c) az adatgyűjtés célja,
d) az adatkezelés időtartama,
e) az adatok megismerésére jogosult lehetséges adatkezelők személye,
f) az érintettek adatkezeléssel kapcsolatos jogainak ismertetése.
-
Az adatgyűjtés ténye, a kezelt adatok köre és az adatkezelés célja:
|
Személyes adat |
Az adatkezelés célja |
|
Név, e-mail cím, telefon. |
Kapcsolattartás, azonosítás. A szolgáltatás nyújtása, későbbi jogok és követelések érvényesítése, statisztikai készítése |
|
Az üzenetküldés időpontja |
Technikai művelet végrehajtása. |
|
Az üzenetküldés kori IP cím |
Technikai művelet végrehajtása. |
-
Az érintettek köre: A weboldalon üzenetet küldő/ajánlatot/visszahívást kérő/érdeklődő valamennyi érintett.
-
Az adatkezelés időtartama, az adatok törlésének határideje: Az adatkezelés az érintett törlési kéréséig tart.
-
Az adatok megismerésére jogosult lehetséges adatkezelők személye: A személyes adatokat az adatkezelő kezelheti, a fenti alapelvek tiszteletben tartásával.
-
Az érintettek adatkezeléssel kapcsolatos jogainak ismertetése: A személyes adatok törlését, vagy módosítását az alábbi módokon tudja érintett kezdeményezni:
-
postai úton a 2040 Budaörs, Budapesti út 108. címen,
-
e-mail útján a info@madarhegyingatlan.hu e-mail címen,
-
telefonon a +36 30 230 3030 számon.
-
Az adatkezelés során igénybe vett adatfeldolgozó (tárhely-szolgáltató) adatai:
Webrakéta Kft.
1111 Budapest, Lágymányosi út 12
Telefon: +36 (30) 37 38 706
E-mail: info@webraketa.hu
-
Az adatkezelés jogalapja: a Felhasználó hozzájárulása, az Infotv. 5. § (1) bekezdése.
-
Az adatok továbbításra kerülhetnek a követők részére:
Hitel centrum – (GV Hitelközpont Kft) – 1094 Bp., Bokréta u. 32-36. (székhely) –Ha az érintett jelzi, hogy szeretne ingyenes tanácsadást kapni.
AB Home Kft – (energetika tanúsítvány) – 1047 Bp., Káposztásmegyeri út 23.
IS Home Desing Kft– (energetika tanúsítvány) - 1047 Bp., Káposztásmegyeri út 23.
Jelentkezés a dolgozz velünk aloldalon
-
Az információs önrendelkezési jogról és az információszabadságról szóló 2011. évi CXII. törvény 20. § (1) bekezdése alapján, meg kell határozni a Dolgozz velünk aloldalon történő jelentkezés, mint adatkezelés körében a következőket:
a) az adatgyűjtés ténye,
b) az érintettek köre,
c) az adatgyűjtés célja,
d) az adatkezelés időtartama,
e) az adatok megismerésére jogosult lehetséges adatkezelők személye,
f) az érintettek adatkezeléssel kapcsolatos jogainak ismertetése.
-
Az adatgyűjtés ténye, a kezelt adatok köre és az adatkezelés célja:
|
Személyes adat |
Az adatkezelés célja |
|
Név, e-mail cím, telefon. |
Kapcsolattartás, azonosítás. |
|
Pozíció |
Az igénynek megfelelő állás felkínálása |
|
Az önéletrajzokban szereplő valamennyi személyes adat |
Kiválasztás, a megfelelő pozíció felkínálása, az ennek megfelelő partnernél. |
|
Az üzenetküldés időpontja |
Technikai művelet végrehajtása. |
|
Az üzenetküldés kori IP cím |
Technikai művelet végrehajtása. |
-
Az érintettek köre: A weboldalon üzenetet küldő/ajánlatot/visszahívást kérő valamennyi érintett.
-
Az adatkezelés időtartama, az adatok törlésének határideje: Az adatok 2 havonta törlésre kerülnek.
-
Az adatok megismerésére jogosult lehetséges adatkezelők személye: A személyes adatokat az adatkezelő kezelheti, a fenti alapelvek tiszteletben tartásával.
-
Az érintettek adatkezeléssel kapcsolatos jogainak ismertetése: A személyes adatok törlését, vagy módosítását az alábbi módokon tudja érintett kezdeményezni:
-
postai úton a 2040 Budaörs, Budapesti út 108. címen,
-
e-mail útján a info@madarhegyingatlan.hu e-mail címen,
-
telefonon a +36 30 230 3030 számon.
-
Az adatkezelés során igénybe vett adatfeldolgozó (tárhely-szolgáltató) adatai:
Webrakéta Kft.
1111 Budapest, Lágymányosi út 12
Telefon: +36 (30) 37 38 706
E-mail: info@webraketa.hu
-
Az adatkezelés jogalapja: a Felhasználó hozzájárulása, az Infotv. 5. § (1) bekezdése.
Ingatlanközvetítői megbízás
-
Az információs önrendelkezési jogról és az információszabadságról szóló 2011. évi CXII. törvény 20. § (1) bekezdése alapján, meg kell határozni az ingatlanközvetítői tevékenység ellátása érdekében kötött megbízás szerződés esetén az adatkezelés részleteit, a következőket:
a) az adatgyűjtés ténye,
b) az érintettek köre,
c) az adatgyűjtés célja,
d) az adatkezelés időtartama,
e) az adatok megismerésére jogosult lehetséges adatkezelők személye,
f) az érintettek adatkezeléssel kapcsolatos jogainak ismertetése.
-
Az adatkezelés ténye, a kezelt adatok köre: Név, anyja neve, házassági név, születési hely és idő, személyi szám, lakcím, állampolgárság, szig. szám, adóazonosító, telefon, mobil, fax szám, e-mail, az ingatlan pontos címe és helyrajzi száma, az ingatlanon lévő mindennemű teher, annak típusa, mértéke - ha ezek személyes adatnak minősülnek, a tényleges tulajdonos/a képviseletre jogosult adatai.
-
Az érintettek köre: Az adatkezelővel megbízási szerződést kötő valamennyi érintett.
-
Az adatkezelés célja: Az ingatlanközvetítői tevékenység ellátása, a szerződésben rögzített szolgáltatások és kötelezettségek teljesítése, nyújtása, és biztosítása.
-
Az adatkezelés időtartama, az adatok törlésének határideje: A személyes adatokat az érintett törlési kéréséig kezeli az adatkezelő. Kivéve a számviteli bizonylatok esetében, hiszen a számvitelről szóló 2000. évi C. törvény 169. § (2) bekezdése alapján 8 évig meg kell őrizni ezeket az adatokat.
A könyvviteli elszámolást közvetlenül és közvetetten alátámasztó számviteli bizonylatot (ideértve a főkönyvi számlákat, az analitikus, illetve részletező nyilvántartásokat is), legalább 8 évig kell olvasható formában, a könyvelési feljegyzések hivatkozása alapján visszakereshető módon megőrizni.
-
Az adatok megismerésére jogosult lehetséges adatkezelők személye: A személyes adatokat az adatkezelő kezelheti, a fenti alapelvek tiszteletben tartásával.
-
Az érintettek adatkezeléssel kapcsolatos jogainak ismertetése: A személyes adatok törlését, vagy módosítását az alábbi módokon tudja érintett kezdeményezni:
-
postai úton a 2040 Budaörs, Budapesti út 108. címen,
-
e-mail útján a info@madarhegyingatlan.hu e-mail címen,
-
telefonon a +36 30 230 3030 számon.
-
Az adatkezelés jogalapja: az érintett önkéntes hozzájárulása, az Infotv. 5. § (1) bekezdése.
Megtekintési nyilatkozat
-
Az információs önrendelkezési jogról és az információszabadságról szóló 2011. évi CXII. törvény 20. § (1) bekezdése alapján, meg kell határozni az ingatlanközvetítői tevékenység ellátása érdekében, a felek által aláírt megtekintési nyilatkozat esetén az adatkezelés részleteit, a következőket:
a) az adatgyűjtés ténye,
b) az érintettek köre,
c) az adatgyűjtés célja,
d) az adatkezelés időtartama,
e) az adatok megismerésére jogosult lehetséges adatkezelők személye,
f) az érintettek adatkezeléssel kapcsolatos jogainak ismertetése.
-
Az adatkezelés ténye, a kezelt adatok köre: Név, anyja neve, születési hely és idő, lakcím, állampolgárság, szig. szám, telefon, e-mail.
-
Az érintettek köre: Az adatkezelővel megtekintési nyilatkozatot aláíró valamennyi érintett.
-
Az adatkezelés célja: A megtekintési nyilatkozat használata, az abból eredő jogok gyakorlása, kötelezettségek teljesítése.
-
Az adatkezelés időtartama, az adatok törlésének határideje: A személyes adatokat az érintett törlési kéréséig kezeli az adatkezelő.
-
Az adatok megismerésére jogosult lehetséges adatkezelők személye: A személyes adatokat az adatkezelő kezelheti, a fenti alapelvek tiszteletben tartásával.
-
Az érintettek adatkezeléssel kapcsolatos jogainak ismertetése: A személyes adatok törlését, vagy módosítását az alábbi módokon tudja érintett kezdeményezni:
-
postai úton a 2040 Budaörs, Budapesti út 108. címen,
-
e-mail útján a info@madarhegyingatlan.hu e-mail címen,
-
telefonon a +36 1 612 5309 számon.
-
Az adatkezelés jogalapja: az érintett önkéntes hozzájárulása, az Infotv. 5. § (1) bekezdése.
Cookie-k (sütik) kezelése
-
Az információs önrendelkezési jogról és az információszabadságról szóló 2011. évi CXII. törvény 20. § (1) bekezdése alapján, meg kell határozni a weboldal cookie adatkezelése körében a következőket:
a) az adatgyűjtés ténye,
b) az érintettek köre,
c) az adatgyűjtés célja,
d) az adatkezelés időtartama,
e) az adatok megismerésére jogosult lehetséges adatkezelők személye,
f) az érintettek adatkezeléssel kapcsolatos jogainak ismertetése.
-
Az adatkezelés ténye, a kezelt adatok köre: Egyedi azonosítószám, dátumok, időpontok.
-
Az érintettek köre: A weboldalt látogató valamennyi érintett.
-
Az adatkezelés célja: A felhasználók azonosítása és a látogatók nyomon követése.
-
Az adatkezelés időtartama, az adatok törlésének határideje: Az adatkezelés időtartama a session cookie-k esetén a honlapok látogatásának befejezéséig tart.
-
Az adatok megismerésére jogosult lehetséges adatkezelők személye: A cookie-k használatával nem kezel személyes adatokat az adatkezelő.
-
Az érintettek adatkezeléssel kapcsolatos jogainak ismertetése: Az érintettnek lehetőségük van a cookie-kat törölni a böngészők Eszközök/Beállítások menüjében általában az Adatvédelem menüpont beállításai alatt.
-
Az adatkezelés jogalapja: Az érintettől hozzájárulás nem szükséges, amennyiben a cookie-k használatának kizárólagos célja az elektronikus hírközlő hálózaton keresztül történő közléstovábbítás vagy arra az előfizető vagy felhasználó által kifejezetten kért, az információs társadalommal összefüggő szolgáltatás nyújtásához a szolgáltatónak feltétlenül szüksége van.
Google Adwords konverziókövetés használata
-
A „Google AdWords” nevű online reklámprogramot használja az adatkezelő, továbbá annak keretein belül igénybe veszi a Google konverziókövető szolgáltatását. A Google konverziókövetés a Google Inc. elemző szolgáltatása (1600 Amphitheatre Parkway, Mountain View, CA 94043, USA; „Google“).
-
Amikor Felhasználó egy weboldalt Google-hirdetés által ér el, akkor egy a konverziókövetéshez szükséges cookie kerül a számítógépére. Ezeknek a cookie-knak az érvényessége korlátozott, és nem tartalmaznak semmilyen személyes adatot, így a Felhasználó nem is azonosítható általuk.
-
Amikor a Felhasználó a weboldal bizonyos oldalait böngészi, és a cookie még nem járt le, akkor a Google és az adatkezelő is láthatja, hogy Felhasználó a hirdetésre kattintott.
-
Minden Google AdWords ügyfél másik cookie-t kap, így azokat az AdWords ügyfeleinek weboldalain keresztül nem lehet nyomon követni.
-
Az információk – melyeket a konverziókövető cookie-k segítségével szereztek – azt a célt szolgálják, hogy az AdWords konverziókövetést választó ügyfeleinek számára konverziós statisztikákat készítsenek. Az ügyfelek így tájékozódnak a hirdetésükre kattintó és konverziókövető címkével ellátott oldalra továbbított felhasználók számáról. Azonban olyan információkhoz nem jutnak hozzá, melyekkel bármelyik felhasználót azonosítani lehetne.
-
Ha nem szeretne részt venni a konverziókövetésben, akkor ezt elutasíthatja azáltal, hogy böngészőjében letiltja a cookie-k telepítésének lehetőségét. Ezután Ön nem fog szerepelni a konverziókövetési statisztikákban.
-
További információ valamint a Google adatvédelmi nyilatkozata az alábbi oldalon érhető el: www.google.de/policies/privacy/
A Google Analytics alkalmazása
-
-
Ez a honlap a Google Analytics alkalmazást használja, amely a Google Inc. („Google”) webelemző szolgáltatása. A Google Analytics úgynevezett „cookie-kat”, szövegfájlokat használ, amelyeket a számítógépére mentenek, így elősegítik Felhasználó által látogatott weblap használatának elemzését.
-
-
-
A Felhasználó által használt weboldallal kapcsolatos cookie-kkal létrehozott információk rendszerint a Google egyik USA-beli szerverére kerülnek és tárolódnak. Az IP-anonimizálás weboldali aktiválásával a Google a Felhasználó IP-címét az Európai Unió tagállamain belül vagy az Európai Gazdasági Térségről szóló megállapodásban részes más államokban előzőleg megrövidíti.
-
-
-
A teljes IP-címnek a Google USA-ban lévő szerverére történő továbbítására és ottani lerövidítésére csak kivételes esetekben kerül sor. Eme weboldal üzemeltetőjének megbízásából a Google ezeket az információkat arra fogja használni, hogy kiértékelje, hogyan használta a Felhasználó a honlapot, továbbá, hogy a weboldal üzemeltetőjének a honlap aktivitásával összefüggő jelentéseket készítsen, valamint, hogy a weboldal- és az internethasználattal kapcsolatos további szolgáltatásokat teljesítsen.
-
-
-
A Google Analytics keretein belül a Felhasználó böngészője által továbbított IP-címet nem vezeti össze a Google más adataival. A cookie-k tárolását a Felhasználó a böngészőjének megfelelő beállításával megakadályozhatja, azonban felhívjuk figyelmét, hogy ebben az esetben előfordulhat, hogy ennek a honlapnak nem minden funkciója lesz teljes körűen használható. Megakadályozhatja továbbá, hogy a Google gyűjtse és feldolgozza a cookie-k általi, a Felhasználó weboldalhasználattal kapcsolatos adatait (beleértve az IP-címet is), ha letölti és telepíti a következő linken elérhető böngésző plugint. https://tools.google.com/dlpage/gaoptout?hl=hu
-
Hírlevél, DM tevékenység
-
A gazdasági reklámtevékenység alapvető feltételeiről és egyes korlátairól szóló 2008. évi XLVIII. törvény (Grt.) 6. §-a értelmében Felhasználó előzetesen és kifejezetten hozzájárulhat ahhoz, hogy Szolgáltató reklámajánlataival, egyéb küldeményeivel a regisztrációkor megadott elérhetőségein megkeresse. Jelen fejezetben előforduló hírlevél kifejezés alatt adatkezelő valamennyi - a Grt. hatálya alá tartozó - üzenetér érteni kell (pl. hirdetésfigyelő, vadász funkció, leendő partnereknek küldött üzenetek).
-
Továbbá Ügyfél a jelen tájékoztató rendelkezéseit szem előtt tartva hozzájárulhat ahhoz, hogy Szolgáltató a reklámajánlatok küldéséhez szükséges személyes adatait kezelje.
-
Szolgáltató nem küld kéretlen reklámüzenetet, és Felhasználó korlátozás és indokolás nélkül, ingyenesen leiratkozhat az ajánlatok küldéséről. Ebben az esetben Szolgáltató minden - a reklámüzenetek küldéséhez szükséges - személyes adatát törli nyilvántartásából és további reklámajánlataival nem keresi meg a Felhasználót. Felhasználó a reklámokról leiratkozhat az üzenetben lévő linkre kattintva.
-
Az információs önrendelkezési jogról és az információszabadságról szóló 2011. évi CXII. törvény 20. § (1) bekezdése alapján, meg kell határozni a hírlevél-küldés adatkezelése körében a következőket:
a) az adatgyűjtés ténye,
b) az érintettek köre,
c) az adatgyűjtés célja,
d) az adatkezelés időtartama,
e) az adatok megismerésére jogosult lehetséges adatkezelők személye,
f) az érintettek adatkezeléssel kapcsolatos jogainak ismertetése.
-
Az adatkezelés ténye, a kezelt adatok köre: Név, e-mail cím, dátum, időpont.
-
Az érintettek köre: A hírlevélre feliratkozó valamennyi érintett.
-
Az adatkezelés célja: reklámot tartalmazó elektronikus üzenetek küldése az érintett részére, tájékoztatás nyújtása az aktuális információkról, ajánlatokról, ingatlanokról, akciókról, új funkciókról stb.
-
Az adatkezelés időtartama, az adatok törlésének határideje: a hozzájáruló nyilatkozat visszavonásáig, azaz a leiratkozásig tart az adatkezelés.
-
Az adatok megismerésére jogosult lehetséges adatkezelők személye: A személyes adatokat az adatkezelő munkatársai kezelhetik, a fenti alapelvek tiszteletben tartásával.
-
Az adatkezelés nyilvántartási száma: NAIH-112840/2017.
-
Az érintettek adatkezeléssel kapcsolatos jogainak ismertetése: Az érintett bármikor, ingyenesen leiratkozhat a hírlevélről.
-
Az adatkezelés során igénybe vett adatfeldolgozók:
SalesAutopilot Kft.
Szolgáltatás: MailMaster
Székhely: Golgota utca 3., Budapest, H-1089
Cím: 1024 Budapest, Margit krt. 31-33., félemelet 4.
Telefon: (+36) 30 624 39 34
Webrakéta Kft.
1111 Budapest, Lágymányosi út 12
Telefon: +36 (30) 37 38 706
E-mail: info@webraketa.hu
-
Az adatkezelés jogalapja: az érintett önkéntes hozzájárulása, az Infotv. 5. § (1) bekezdése, és a gazdasági reklámtevékenység alapvető feltételeiről és egyes korlátairól szóló 2008. évi XLVIII. törvény 6. § (5) bekezdése:
A reklámozó, a reklámszolgáltató, illetve a reklám közzétevője – a hozzájárulásban meghatározott körben - a náluk hozzájáruló nyilatkozatot tevő személyek személyes adatairól nyilvántartást vezet. Az ebben a nyilvántartásban rögzített - a reklám címzettjére vonatkozó - adat csak a hozzájáruló nyilatkozatban foglaltaknak megfelelően, annak visszavonásáig kezelhető, és harmadik fél számára kizárólag az érintett személy előzetes hozzájárulásával adható át.
Közösségi oldalak
-
Az információs önrendelkezési jogról és az információszabadságról szóló 2011. évi CXII. törvény 20. § (1) bekezdése alapján, meg kell határozni a közösségi oldalak adatkezelése körében a következőket:
a) az adatgyűjtés ténye,
b) az érintettek köre,
c) az adatgyűjtés célja,
d) az adatkezelés időtartama,
e) az adatok megismerésére jogosult lehetséges adatkezelők személye,
f) az érintettek adatkezeléssel kapcsolatos jogainak ismertetése.
-
Az adatgyűjtés ténye, a kezelt adatok köre: Facebook/Google+/Twitter/Pinterest/Youtube/Instagram stb. közösségi oldalakon regisztrált neve, illetve a felhasználó nyilvános profilképe.
-
Az érintettek köre: Valamennyi érintett, aki regisztrált a Facebook/Google+/Twitter/Pinterest/Youtube/Instagram stb. közösségi oldalakon, és „lájkolta” a weboldalt.
-
Az adatgyűjtés célja: A közösségi oldalakon, a weboldal egyes tartalmi elemeinek, termékeinek, akcióinak vagy magának a weboldalnak a megosztása, illetve „lájkolása”, népszerűsítése.
-
Az adatkezelés időtartama, az adatok törlésének határideje, az adatok megismerésére jogosult lehetséges adatkezelők személye és az érintettek adatkezeléssel kapcsolatos jogainak ismertetése: Az adatok forrásáról, azok kezeléséről, illetve az átadás módjáról, és jogalapjáról az adott közösségi oldalon tájékozódhat az érintett. Az adatkezelés a közösségi oldalakon valósul meg, így az adatkezelés időtartamára, módjára, illetve az adatok törlési és módosítási lehetőségeire az adott közösségi oldal szabályozása vonatkozik.
-
Az adatkezelés jogalapja: az érintett önkéntes hozzájárulása személyes adatai kezeléséhez a közösségi oldalakon.
Ügyfélkapcsolatok és egyéb adatkezelések
-
Amennyiben az adatkezelő szolgáltatásaink igénybevétele során kérdés merülne fel, esetleg problémája lenne az érintettnek, az adatkezelő egyéb elérhetőségein (telefon, e-mail, közösségi oldalak stb.) kapcsolatba léphet az adatkezelővel.
-
Adatkezelő a beérkezett e-maileket, üzeneteket, telefonon, Facebook-on stb. megadott adatokat az érdeklődő nevével és e-mail címével, valamint más, önként megadott személyes adatával együtt, az érintett kérésére törli.
-
E tájékoztatóban fel nem sorolt adatkezelésekről az adat felvételekor adunk tájékoztatást.
-
Kivételes hatósági megkeresésre, illetőleg jogszabály felhatalmazása alapján más szervek megkeresése esetén a Szolgáltató köteles tájékoztatás adására, adatok közlésére, átadására, illetőleg iratok rendelkezésre bocsátására.
-
A Szolgáltató ezen esetekben a megkereső részére – amennyiben az a pontos célt és az adatok körét megjelölte – személyes adatot csak annyit és olyan mértékben ad ki, amely a megkeresés céljának megvalósításához elengedhetetlenül szükséges.
Adatbiztonság
-
Az adatkezelő úgy tervezi meg és hajtja végre az adatkezelési műveleteket, hogy biztosítsa az érintettek magánszférájának védelmét.
-
Az adatkezelő gondoskodik az adatok biztonságáról (jelszóval, vírusirtóval való védettség), megteszi azokat a technikai és szervezési intézkedéseket és kialakítja azokat az eljárási szabályokat, amelyek az Info tv., valamint az egyéb adat- és titokvédelmi szabályok érvényre juttatásához szükségesek.
-
Az adatokat megfelelő intézkedésekkel védi az adatkezelő különösen
-
a jogosulatlan hozzáférés,
-
a megváltoztatás,
-
a továbbítás,
-
a nyilvánosságra hozatal,
-
a törlés vagy megsemmisítés,
-
a véletlen megsemmisülés és sérülés,
-
az alkalmazott technika megváltozásából fakadó hozzáférhetetlenné válás ellen.
-
Az adatkezelő megfelelő technikai megoldással biztosítja, hogy a nyilvántartásokban tárolt adatok közvetlenül ne legyenek összekapcsolhatók és az érintetthez rendelhetők.
-
A személyes adatokhoz való jogosulatlan hozzáférés, az adatok megváltoztatása és jogosulatlan nyilvánosságra-hozatala, vagy felhasználása megakadályozása érdekében az adatkezelő gondoskodik:
-
-
a megfelelő informatikai, műszaki környezet kialakításáról, üzemeltetéséről,
-
-
a szolgáltatásnyújtásban résztevő munkatársai ellenőrzött kiválasztásáról, felügyeletéről,
-
a részletes üzemeltetési, kockázatkezelési és szolgáltatási eljárásrendek kiadásáról.
-
A fentiek alapján szolgáltató biztosítja, hogy az általa kezelt adat
-
a jogosult számára rendelkezésre álljon,
-
hitelessége és hitelesítése biztosított,
-
változatlansága igazolható legyen.
-
Adatkezelő és annak tárhely-szolgáltatójának informatikai rendszere véd többek között
-
a számítástechnikai csalás,
-
a kémkedés,
-
a számítógépvírusok,
-
a spam-ek,
-
a hack-ek
-
és egyéb támadások ellen.
-
Adatkezelő az alábbi konkrét adatbiztonsági intézkedéseket teszi:
-
A szolgáltató az elvárható nehézségű jelszavakkal dolgozik, melyek variáció lehetőségei minimum 628 (218 340 105 584 896).
-
A weboldalon található „belépés” nem teszi lehetővé az ügyféladatok elérését.
Az érintettek jogai
-
Az érintett kérelmezheti az Szolgáltatónál, hogy az adjon tájékoztatását személyes adatai kezeléséről, kérheti személyes adatainak helyesbítését, valamint kérheti személyes adatainak - a kötelező adatkezelés kivételével - törlését vagy zárolását.
-
Az érintett kérelmére az adatkezelő tájékoztatást ad az érintett általa kezelt, illetve az általa vagy rendelkezése szerint megbízott adatfeldolgozó által feldolgozott adatairól, azok forrásáról, az adatkezelés céljáról, jogalapjáról, időtartamáról, az adatfeldolgozó nevéről, címéről és az adatkezeléssel összefüggő tevékenységéről, az adatvédelmi incidens körülményeiről, hatásairól és az elhárítására megtett intézkedésekről, továbbá - az érintett személyes adatainak továbbítása esetén - az adattovábbítás jogalapjáról és címzettjéről.
-
Az adatkezelő - ha belső adatvédelmi felelőssel rendelkezik, a belső adatvédelmi felelős útján - az adatvédelmi incidenssel kapcsolatos intézkedések ellenőrzése, valamint az érintett tájékoztatása céljából nyilvántartást vezet, amely tartalmazza az érintett személyes adatok körét, az adatvédelmi incidenssel érintettek körét és számát, az adatvédelmi incidens időpontját, körülményeit, hatásait és az elhárítására megtett intézkedéseket, valamint az adatkezelést előíró jogszabályban meghatározott egyéb adatokat.
-
Az adatkezelő az adattovábbítás jogszerűségének ellenőrzése, valamint az érintett tájékoztatása céljából adattovábbítási nyilvántartást vezet, amely tartalmazza az általa kezelt személyes adatok továbbításának időpontját, az adattovábbítás jogalapját és címzettjét, a továbbított személyes adatok körének meghatározását, valamint az adatkezelést előíró jogszabályban meghatározott egyéb adatokat.
-
Felhasználó kérelmére Szolgáltató tájékoztatást ad az általa kezelt adatokról, azok forrásáról, az adatkezelés céljáról, jogalapjáról, időtartamáról, az esetleges adatfeldolgozó nevéről, címéről és az adatkezeléssel összefüggő tevékenységéről, továbbá - az érintett személyes adatainak továbbítása esetén - az adattovábbítás jogalapjáról és címzettjéről. Szolgáltató a kérelem benyújtásától számított legrövidebb idő alatt, legfeljebb azonban 25 napon belül írásban, közérthető formában adja meg a tájékoztatást. A tájékoztatás ingyenes.
-
Szolgáltató, amennyiben a személyes adat a valóságnak nem felel meg, és a valóságnak megfelelő személyes adat az adatkezelő rendelkezésére áll, a személyes adatot helyesbíti.
-
Törlés helyett Szolgáltató zárolja a személyes adatot, ha a Felhasználó ezt kéri, vagy ha a rendelkezésére álló információk alapján feltételezhető, hogy a törlés sértené a Felhasználó jogos érdekeit. A zárolt személyes adat kizárólag addig kezelhető, ameddig fennáll az az adatkezelési cél, amely a személyes adat törlését kizárta.
-
Szolgáltató törli a személyes adatot, ha kezelése jogellenes, a Felhasználó kéri, a kezelt adat hiányos vagy téves - és ez az állapot jogszerűen nem orvosolható - feltéve, hogy a törlést törvény nem zárja ki, az adatkezelés célja megszűnt, vagy az adatok tárolásának törvényben meghatározott határideje lejárt, azt a bíróság vagy a Nemzeti Adatvédelmi és Információszabadság Hatóság elrendelte.
-
Az adatkezelő megjelöli az általa kezelt személyes adatot, ha az érintett vitatja annak helyességét vagy pontosságát, de a vitatott személyes adat helytelensége vagy pontatlansága nem állapítható meg egyértelműen.
-
A helyesbítésről, a zárolásról, a megjelölésről és a törlésről az érintettet, továbbá mindazokat értesíteni kell, akiknek korábban az adatot adatkezelés céljára továbbították. Az értesítés mellőzhető, ha ez az adatkezelés céljára való tekintettel az érintett jogos érdekét nem sérti.
-
Ha az adatkezelő az érintett helyesbítés, zárolás vagy törlés iránti kérelmét nem teljesíti, a kérelem kézhezvételét követő 25 napon belül írásban közli a helyesbítés, zárolás vagy törlés iránti kérelem elutasításának ténybeli és jogi indokait. A helyesbítés, törlés vagy zárolás iránti kérelem elutasítása esetén az adatkezelő tájékoztatja az érintettet a bírósági jogorvoslat, továbbá a Hatósághoz fordulás lehetőségéről.
Jogorvoslat
-
Felhasználó tiltakozhat személyes adatának kezelése ellen, ha
-
a személyes adatok kezelése vagy továbbítása kizárólag az Szolgáltatóra vonatkozó jogi kötelezettség teljesítéséhez, vagy az Szolgáltató, adatátvevő vagy harmadik személy jogos érdekének érvényesítéséhez szükséges, kivéve, ha az adatkezelést törvény rendelte el;
-
a személyes adat felhasználása vagy továbbítása közvetlen üzletszerzés, közvélemény-kutatás vagy tudományos kutatás céljára történik;
-
törvényben meghatározott egyéb esetben.
-
Szolgáltató a tiltakozást a kérelem benyújtásától számított legrövidebb időn belül, de legfeljebb 15 nap alatt megvizsgálja, annak megalapozottsága kérdésében döntést hoz, és döntéséről a kérelmezőt írásban tájékoztatja. Ha az Szolgáltató az érintett tiltakozásának megalapozottságát megállapítja, az adatkezelést - beleértve a további adatfelvételt és adattovábbítást is - megszünteti, és az adatokat zárolja, valamint a tiltakozásról, továbbá az annak alapján tett intézkedésekről értesíti mindazokat, akik részére a tiltakozással érintett személyes adatot korábban továbbította, és akik kötelesek intézkedni a tiltakozási jog érvényesítése érdekében.
-
Amennyiben a Felhasználó Szolgáltatónak a meghozott döntésével nem ért egyet, az ellen - annak közlésétől számított 30 napon belül - bírósághoz fordulhat. A bíróság soron kívül jár el.
-
Az adatkezelő esetleges jogsértése ellen panasszal a Nemzeti Adatvédelmi és Információszabadság Hatóságnál lehet élni:
Nemzeti Adatvédelmi és Információszabadság Hatóság
1125 Budapest, Szilágyi Erzsébet fasor 22/C.
Levelezési cím: 1530 Budapest, Postafiók: 5.
Telefon: +36 -1-391-1400
Fax: +36-1-391-1410
E-mail: ugyfelszolgalat@naih.hu
Bírósági jogérvényesítés
-
Azt, hogy az adatkezelés a jogszabályban foglaltaknak megfelel, az adatkezelő köteles bizonyítani. Az adattovábbítás jogszerűségét az adatátvevő köteles bizonyítani.
-
A per elbírálása a törvényszék hatáskörébe tartozik. A per - az érintett választása szerint - az érintett lakóhelye vagy tartózkodási helye szerinti törvényszék előtt is megindítható.
-
A perben fél lehet az is, akinek egyébként nincs perbeli jogképessége. A perbe a Hatóság az érintett pernyertessége érdekében beavatkozhat.
-
Ha a bíróság a kérelemnek helyt ad, az adatkezelőt a tájékoztatás megadására, az adat helyesbítésére, zárolására, törlésére, az automatizált adatfeldolgozással hozott döntés megsemmisítésére, az érintett tiltakozási jogának figyelembevételére, illetve az adatátvevő által kért adat kiadására kötelezi.
-
Ha a bíróság az adatátvevő kérelmét elutasítja, az adatkezelő köteles az érintett személyes adatát az ítélet közlésétől számított 3 napon belül törölni. Az adatkezelő köteles az adatokat akkor is törölni, ha az adatátvevő a meghatározott határidőn belül nem fordul bírósághoz.
-
A bíróság elrendelheti ítéletének - az adatkezelő azonosító adatainak közzétételével történő - nyilvánosságra hozatalát, ha azt az adatvédelem érdekei és nagyobb számú érintett védett jogai megkövetelik.
Kártérítés és sérelemdíj
-
Ha az adatkezelő az érintett adatainak jogellenes kezelésével vagy az adatbiztonság követelményeinek megszegésével az érintett személyiségi jogát megsérti, az érintett az adatkezelőtől sérelemdíjat követelhet.
-
Az érintettel szemben az adatkezelő felel az adatfeldolgozó által okozott kárért és az adatkezelő köteles megfizetni az érintettnek az adatfeldolgozó által okozott személyiségi jogsértés esetén járó sérelemdíjat is. Az adatkezelő mentesül az okozott kárért való felelősség és a sérelemdíj megfizetésének kötelezettsége alól, ha bizonyítja, hogy a kárt vagy az érintett személyiségi jogának sérelmét az adatkezelés körén kívül eső elháríthatatlan ok idézte elő.
-
Nem kell megtéríteni a kárt és nem követelhető a sérelemdíj annyiban, amennyiben a kár a károsult vagy a személyiségi jog megsértésével okozott jogsérelem az érintett szándékos vagy súlyosan gondatlan magatartásából származott.
Zárszó
A tájékoztató elkészítése során figyelemmel voltunk az alábbi jogszabályokra:
-
2011. évi CXII. törvény – az információs önrendelkezési jogról és az információszabadságról (a továbbiakban: Infotv.)
-
2001. évi CVIII. törvény – az elektronikus kereskedelmi szolgáltatások, valamint az információs társadalommal összefüggő szolgáltatások egyes kérdéseiről (főképp a 13/A. §-a)
-
2008. évi XLVII. törvény – a fogyasztókkal szembeni tisztességtelen kereskedelmi gyakorlat tilalmáról;
-
2008. évi XLVIII. törvény – a gazdasági reklámtevékenység alapvető feltételeiről és egyes korlátairól (különösen a 6.§-a)
-
2005. évi XC. törvény az elektronikus információszabadságról
-
2003. évi C. törvény az elektronikus hírközlésről (kifejezetten a 155.§-a)
-
16/2011. sz. vélemény a viselkedésalapú online reklám bevált gyakorlatára vonatkozó EASA/IAB-ajánlásról
-
A Nemzeti Adatvédelmi és Információszabadság Hatóság ajánlása az előzetes tájékoztatás adatvédelmi követelményeiről
Bevezetés
A Luxusingatlan Kft. (2040 Budaörs, Budapesti út 108. , adószám: 14311499-1-13 , cégjegyzékszám: 13-09-120088 ) (a továbbiakban: Szolgáltató, adatkezelő) alá veti magát a következő tájékoztatónak.
Az információs önrendelkezési jogról és az információszabadságról szóló 2011. évi CXII. törvény 20. § (1) kimondja, hogy az érintettel (jelen esetben a weboldal-használókkal és az ügyfelekkel a továbbiakban: felhasználó) az adatkezelés megkezdése előtt közölni kell, hogy az adatkezelés hozzájáruláson alapul vagy kötelező.
Az érintettet az adatkezelés megkezdése előtt egyértelműen és részletesen tájékoztatni kell az adatai kezelésével kapcsolatos minden tényről, így különösen az adatkezelés céljáról és jogalapjáról, az adatkezelésre és az adatfeldolgozásra jogosult személyéről, az adatkezelés időtartamáról.
Tájékoztatni kell az érintettet az Info tv. 6. § (1) bekezdése alapján arról is, hogy személyes adat kezelhető akkor is, ha az érintett hozzájárulásának beszerzése lehetetlen vagy aránytalan költséggel járna, és a személyes adat kezelése
-
az adatkezelőre vonatkozó jogi kötelezettség teljesítése céljából szükséges, vagy
-
az adatkezelő vagy harmadik személy jogos érdekének érvényesítése céljából szükséges, és ezen érdek érvényesítése a személyes adatok védelméhez fűződő jog korlátozásával arányban áll.
A tájékoztatásnak ki kell terjednie az érintett adatkezeléssel kapcsolatos jogaira és jogorvoslati lehetőségeire is.
Ha az érintettek személyes tájékoztatása lehetetlen vagy aránytalan költséggel járna (mint például jelen esetben egy weboldalon, vagy az ügyfelek felé a telefonhívások alkalmával), a tájékoztatás megtörténhet az alábbi információk nyilvánosságra hozatalával is:
e) az adatok megismerésére jogosult lehetséges adatkezelők személye,
f) az érintettek adatkezeléssel kapcsolatos jogainak és jogorvoslati lehetőségeinek ismertetése, valamint
g) ha az adatkezelés adatvédelmi nyilvántartásba vételének van helye, az adatkezelés nyilvántartási száma.
Értelmező fogalmak
-
érintett/Felhasználó: bármely meghatározott, személyes adat alapján azonosított vagy - közvetlenül vagy közvetve - azonosítható természetes személy;
-
személyes adat: az érintettel kapcsolatba hozható adat - különösen az érintett neve, azonosító jele, valamint egy vagy több fizikai, fiziológiai, mentális, gazdasági, kulturális vagy szociális azonosságára jellemző ismeret -, valamint az adatból levonható, az érintettre vonatkozó következtetés;
-
adatkezelő: az a természetes vagy jogi személy, illetve jogi személyiséggel nem rendelkező szervezet, aki vagy amely önállóan vagy másokkal együtt az adatok kezelésének célját meghatározza, az adatkezelésre (beleértve a felhasznált eszközt) vonatkozó döntéseket meghozza és végrehajtja, vagy az általa megbízott adatfeldolgozóval végrehajtatja;
-
adatkezelés: az alkalmazott eljárástól függetlenül az adatokon végzett bármely művelet vagy a műveletek összessége, így különösen gyűjtése, felvétele, rögzítése, rendszerezése, tárolása, megváltoztatása, felhasználása, lekérdezése, továbbítása, nyilvánosságra hozatala, összehangolása vagy összekapcsolása, zárolása, törlése és megsemmisítése, valamint az adatok további felhasználásának megakadályozása, fénykép-, hang- vagy képfelvétel készítése, valamint a személy azonosítására alkalmas fizikai jellemzők (pl. ujj- vagy tenyérnyomat, DNS-minta, íriszkép) rögzítése;
-
adatfeldolgozás: az adatkezelési műveletekhez kapcsolódó technikai feladatok elvégzése, függetlenül a műveletek végrehajtásához alkalmazott módszertől és eszköztől, valamint az alkalmazás helyétől, feltéve hogy a technikai feladatot az adatokon végzik;
-
adatfeldolgozó: az a természetes vagy jogi személy, illetve jogi személyiséggel nem rendelkező szervezet, aki vagy amely az adatkezelővel kötött szerződése alapján - beleértve a jogszabály rendelkezése alapján történő szerződéskötést is - adatok feldolgozását végzi;
-
adatvédelmi incidens: személyes adat jogellenes kezelése vagy feldolgozása, így különösen a jogosulatlan hozzáférés, megváltoztatás, továbbítás, nyilvánosságra hozatal, törlés vagy megsemmisítés, valamint a véletlen megsemmisülés és sérülés.
Üzenetküldés, kapcsolatfelvétel a weboldalon
-
Az információs önrendelkezési jogról és az információszabadságról szóló 2011. évi CXII. törvény 20. § (1) bekezdése alapján, meg kell határozni a weboldalon történő üzenetküldés, kapcsolatfelvétel, mint adatkezelések körében a következőket:
a) az adatgyűjtés ténye,
b) az érintettek köre,
c) az adatgyűjtés célja,
d) az adatkezelés időtartama,
e) az adatok megismerésére jogosult lehetséges adatkezelők személye,
f) az érintettek adatkezeléssel kapcsolatos jogainak ismertetése.
-
Az adatgyűjtés ténye, a kezelt adatok köre és az adatkezelés célja:
|
Személyes adat |
Az adatkezelés célja |
|
Név, e-mail cím, telefon. |
Kapcsolattartás, azonosítás. A szolgáltatás nyújtása, későbbi jogok és követelések érvényesítése, statisztikai készítése |
|
Az üzenetküldés időpontja |
Technikai művelet végrehajtása. |
|
Az üzenetküldés kori IP cím |
Technikai művelet végrehajtása. |
-
Az érintettek köre: A weboldalon üzenetet küldő/ajánlatot/visszahívást kérő/érdeklődő valamennyi érintett.
-
Az adatkezelés időtartama, az adatok törlésének határideje: Az adatkezelés az érintett törlési kéréséig tart.
-
Az adatok megismerésére jogosult lehetséges adatkezelők személye: A személyes adatokat az adatkezelő kezelheti, a fenti alapelvek tiszteletben tartásával.
-
Az érintettek adatkezeléssel kapcsolatos jogainak ismertetése: A személyes adatok törlését, vagy módosítását az alábbi módokon tudja érintett kezdeményezni:
-
postai úton a 2040 Budaörs, Budapesti út 108. címen,
-
e-mail útján a info@madarhegyingatlan.hu e-mail címen,
-
telefonon a +36 30 230 3030 számon.
-
Az adatkezelés során igénybe vett adatfeldolgozó (tárhely-szolgáltató) adatai:
Webrakéta Kft.
1111 Budapest, Lágymányosi út 12
Telefon: +36 (30) 37 38 706
E-mail: info@webraketa.hu
-
Az adatkezelés jogalapja: a Felhasználó hozzájárulása, az Infotv. 5. § (1) bekezdése.
-
Az adatok továbbításra kerülhetnek a követők részére:
Hitel centrum – (GV Hitelközpont Kft) – 1094 Bp., Bokréta u. 32-36. (székhely) –Ha az érintett jelzi, hogy szeretne ingyenes tanácsadást kapni.
AB Home Kft – (energetika tanúsítvány) – 1047 Bp., Káposztásmegyeri út 23.
IS Home Desing Kft– (energetika tanúsítvány) - 1047 Bp., Káposztásmegyeri út 23.
Jelentkezés a dolgozz velünk aloldalon
-
Az információs önrendelkezési jogról és az információszabadságról szóló 2011. évi CXII. törvény 20. § (1) bekezdése alapján, meg kell határozni a Dolgozz velünk aloldalon történő jelentkezés, mint adatkezelés körében a következőket:
a) az adatgyűjtés ténye,
b) az érintettek köre,
c) az adatgyűjtés célja,
d) az adatkezelés időtartama,
e) az adatok megismerésére jogosult lehetséges adatkezelők személye,
f) az érintettek adatkezeléssel kapcsolatos jogainak ismertetése.
-
Az adatgyűjtés ténye, a kezelt adatok köre és az adatkezelés célja:
|
Személyes adat |
Az adatkezelés célja |
|
Név, e-mail cím, telefon. |
Kapcsolattartás, azonosítás. |
|
Pozíció |
Az igénynek megfelelő állás felkínálása |
|
Az önéletrajzokban szereplő valamennyi személyes adat |
Kiválasztás, a megfelelő pozíció felkínálása, az ennek megfelelő partnernél. |
|
Az üzenetküldés időpontja |
Technikai művelet végrehajtása. |
|
Az üzenetküldés kori IP cím |
Technikai művelet végrehajtása. |
-
Az érintettek köre: A weboldalon üzenetet küldő/ajánlatot/visszahívást kérő valamennyi érintett.
-
Az adatkezelés időtartama, az adatok törlésének határideje: Az adatok 2 havonta törlésre kerülnek.
-
Az adatok megismerésére jogosult lehetséges adatkezelők személye: A személyes adatokat az adatkezelő kezelheti, a fenti alapelvek tiszteletben tartásával.
-
Az érintettek adatkezeléssel kapcsolatos jogainak ismertetése: A személyes adatok törlését, vagy módosítását az alábbi módokon tudja érintett kezdeményezni:
-
postai úton a 2040 Budaörs, Budapesti út 108. címen,
-
e-mail útján a info@madarhegyingatlan.hu e-mail címen,
-
telefonon a +36 30 230 3030 számon.
-
Az adatkezelés során igénybe vett adatfeldolgozó (tárhely-szolgáltató) adatai:
Webrakéta Kft.
1111 Budapest, Lágymányosi út 12
Telefon: +36 (30) 37 38 706
E-mail: info@webraketa.hu
-
Az adatkezelés jogalapja: a Felhasználó hozzájárulása, az Infotv. 5. § (1) bekezdése.
Ingatlanközvetítői megbízás
-
Az információs önrendelkezési jogról és az információszabadságról szóló 2011. évi CXII. törvény 20. § (1) bekezdése alapján, meg kell határozni az ingatlanközvetítői tevékenység ellátása érdekében kötött megbízás szerződés esetén az adatkezelés részleteit, a következőket:
a) az adatgyűjtés ténye,
b) az érintettek köre,
c) az adatgyűjtés célja,
d) az adatkezelés időtartama,
e) az adatok megismerésére jogosult lehetséges adatkezelők személye,
f) az érintettek adatkezeléssel kapcsolatos jogainak ismertetése.
-
Az adatkezelés ténye, a kezelt adatok köre: Név, anyja neve, házassági név, születési hely és idő, személyi szám, lakcím, állampolgárság, szig. szám, adóazonosító, telefon, mobil, fax szám, e-mail, az ingatlan pontos címe és helyrajzi száma, az ingatlanon lévő mindennemű teher, annak típusa, mértéke - ha ezek személyes adatnak minősülnek, a tényleges tulajdonos/a képviseletre jogosult adatai.
-
Az érintettek köre: Az adatkezelővel megbízási szerződést kötő valamennyi érintett.
-
Az adatkezelés célja: Az ingatlanközvetítői tevékenység ellátása, a szerződésben rögzített szolgáltatások és kötelezettségek teljesítése, nyújtása, és biztosítása.
-
Az adatkezelés időtartama, az adatok törlésének határideje: A személyes adatokat az érintett törlési kéréséig kezeli az adatkezelő. Kivéve a számviteli bizonylatok esetében, hiszen a számvitelről szóló 2000. évi C. törvény 169. § (2) bekezdése alapján 8 évig meg kell őrizni ezeket az adatokat.
A könyvviteli elszámolást közvetlenül és közvetetten alátámasztó számviteli bizonylatot (ideértve a főkönyvi számlákat, az analitikus, illetve részletező nyilvántartásokat is), legalább 8 évig kell olvasható formában, a könyvelési feljegyzések hivatkozása alapján visszakereshető módon megőrizni.
-
Az adatok megismerésére jogosult lehetséges adatkezelők személye: A személyes adatokat az adatkezelő kezelheti, a fenti alapelvek tiszteletben tartásával.
-
Az érintettek adatkezeléssel kapcsolatos jogainak ismertetése: A személyes adatok törlését, vagy módosítását az alábbi módokon tudja érintett kezdeményezni:
-
postai úton a 2040 Budaörs, Budapesti út 108. címen,
-
e-mail útján a info@madarhegyingatlan.hu e-mail címen,
-
telefonon a +36 30 230 3030 számon.
-
Az adatkezelés jogalapja: az érintett önkéntes hozzájárulása, az Infotv. 5. § (1) bekezdése.
Megtekintési nyilatkozat
-
Az információs önrendelkezési jogról és az információszabadságról szóló 2011. évi CXII. törvény 20. § (1) bekezdése alapján, meg kell határozni az ingatlanközvetítői tevékenység ellátása érdekében, a felek által aláírt megtekintési nyilatkozat esetén az adatkezelés részleteit, a következőket:
a) az adatgyűjtés ténye,
b) az érintettek köre,
c) az adatgyűjtés célja,
d) az adatkezelés időtartama,
e) az adatok megismerésére jogosult lehetséges adatkezelők személye,
f) az érintettek adatkezeléssel kapcsolatos jogainak ismertetése.
-
Az adatkezelés ténye, a kezelt adatok köre: Név, anyja neve, születési hely és idő, lakcím, állampolgárság, szig. szám, telefon, e-mail.
-
Az érintettek köre: Az adatkezelővel megtekintési nyilatkozatot aláíró valamennyi érintett.
-
Az adatkezelés célja: A megtekintési nyilatkozat használata, az abból eredő jogok gyakorlása, kötelezettségek teljesítése.
-
Az adatkezelés időtartama, az adatok törlésének határideje: A személyes adatokat az érintett törlési kéréséig kezeli az adatkezelő.
-
Az adatok megismerésére jogosult lehetséges adatkezelők személye: A személyes adatokat az adatkezelő kezelheti, a fenti alapelvek tiszteletben tartásával.
-
Az érintettek adatkezeléssel kapcsolatos jogainak ismertetése: A személyes adatok törlését, vagy módosítását az alábbi módokon tudja érintett kezdeményezni:
-
postai úton a 2040 Budaörs, Budapesti út 108. címen,
-
e-mail útján a info@madarhegyingatlan.hu e-mail címen,
-
telefonon a +36 1 612 5309 számon.
-
Az adatkezelés jogalapja: az érintett önkéntes hozzájárulása, az Infotv. 5. § (1) bekezdése.
Cookie-k (sütik) kezelése
-
Az információs önrendelkezési jogról és az információszabadságról szóló 2011. évi CXII. törvény 20. § (1) bekezdése alapján, meg kell határozni a weboldal cookie adatkezelése körében a következőket:
a) az adatgyűjtés ténye,
b) az érintettek köre,
c) az adatgyűjtés célja,
d) az adatkezelés időtartama,
e) az adatok megismerésére jogosult lehetséges adatkezelők személye,
f) az érintettek adatkezeléssel kapcsolatos jogainak ismertetése.
-
Az adatkezelés ténye, a kezelt adatok köre: Egyedi azonosítószám, dátumok, időpontok.
-
Az érintettek köre: A weboldalt látogató valamennyi érintett.
-
Az adatkezelés célja: A felhasználók azonosítása és a látogatók nyomon követése.
-
Az adatkezelés időtartama, az adatok törlésének határideje: Az adatkezelés időtartama a session cookie-k esetén a honlapok látogatásának befejezéséig tart.
-
Az adatok megismerésére jogosult lehetséges adatkezelők személye: A cookie-k használatával nem kezel személyes adatokat az adatkezelő.
-
Az érintettek adatkezeléssel kapcsolatos jogainak ismertetése: Az érintettnek lehetőségük van a cookie-kat törölni a böngészők Eszközök/Beállítások menüjében általában az Adatvédelem menüpont beállításai alatt.
-
Az adatkezelés jogalapja: Az érintettől hozzájárulás nem szükséges, amennyiben a cookie-k használatának kizárólagos célja az elektronikus hírközlő hálózaton keresztül történő közléstovábbítás vagy arra az előfizető vagy felhasználó által kifejezetten kért, az információs társadalommal összefüggő szolgáltatás nyújtásához a szolgáltatónak feltétlenül szüksége van.
Google Adwords konverziókövetés használata
-
A „Google AdWords” nevű online reklámprogramot használja az adatkezelő, továbbá annak keretein belül igénybe veszi a Google konverziókövető szolgáltatását. A Google konverziókövetés a Google Inc. elemző szolgáltatása (1600 Amphitheatre Parkway, Mountain View, CA 94043, USA; „Google“).
-
Amikor Felhasználó egy weboldalt Google-hirdetés által ér el, akkor egy a konverziókövetéshez szükséges cookie kerül a számítógépére. Ezeknek a cookie-knak az érvényessége korlátozott, és nem tartalmaznak semmilyen személyes adatot, így a Felhasználó nem is azonosítható általuk.
-
Amikor a Felhasználó a weboldal bizonyos oldalait böngészi, és a cookie még nem járt le, akkor a Google és az adatkezelő is láthatja, hogy Felhasználó a hirdetésre kattintott.
-
Minden Google AdWords ügyfél másik cookie-t kap, így azokat az AdWords ügyfeleinek weboldalain keresztül nem lehet nyomon követni.
-
Az információk – melyeket a konverziókövető cookie-k segítségével szereztek – azt a célt szolgálják, hogy az AdWords konverziókövetést választó ügyfeleinek számára konverziós statisztikákat készítsenek. Az ügyfelek így tájékozódnak a hirdetésükre kattintó és konverziókövető címkével ellátott oldalra továbbított felhasználók számáról. Azonban olyan információkhoz nem jutnak hozzá, melyekkel bármelyik felhasználót azonosítani lehetne.
-
Ha nem szeretne részt venni a konverziókövetésben, akkor ezt elutasíthatja azáltal, hogy böngészőjében letiltja a cookie-k telepítésének lehetőségét. Ezután Ön nem fog szerepelni a konverziókövetési statisztikákban.
-
További információ valamint a Google adatvédelmi nyilatkozata az alábbi oldalon érhető el: www.google.de/policies/privacy/
A Google Analytics alkalmazása
-
-
Ez a honlap a Google Analytics alkalmazást használja, amely a Google Inc. („Google”) webelemző szolgáltatása. A Google Analytics úgynevezett „cookie-kat”, szövegfájlokat használ, amelyeket a számítógépére mentenek, így elősegítik Felhasználó által látogatott weblap használatának elemzését.
-
-
-
A Felhasználó által használt weboldallal kapcsolatos cookie-kkal létrehozott információk rendszerint a Google egyik USA-beli szerverére kerülnek és tárolódnak. Az IP-anonimizálás weboldali aktiválásával a Google a Felhasználó IP-címét az Európai Unió tagállamain belül vagy az Európai Gazdasági Térségről szóló megállapodásban részes más államokban előzőleg megrövidíti.
-
-
-
A teljes IP-címnek a Google USA-ban lévő szerverére történő továbbítására és ottani lerövidítésére csak kivételes esetekben kerül sor. Eme weboldal üzemeltetőjének megbízásából a Google ezeket az információkat arra fogja használni, hogy kiértékelje, hogyan használta a Felhasználó a honlapot, továbbá, hogy a weboldal üzemeltetőjének a honlap aktivitásával összefüggő jelentéseket készítsen, valamint, hogy a weboldal- és az internethasználattal kapcsolatos további szolgáltatásokat teljesítsen.
-
-
-
A Google Analytics keretein belül a Felhasználó böngészője által továbbított IP-címet nem vezeti össze a Google más adataival. A cookie-k tárolását a Felhasználó a böngészőjének megfelelő beállításával megakadályozhatja, azonban felhívjuk figyelmét, hogy ebben az esetben előfordulhat, hogy ennek a honlapnak nem minden funkciója lesz teljes körűen használható. Megakadályozhatja továbbá, hogy a Google gyűjtse és feldolgozza a cookie-k általi, a Felhasználó weboldalhasználattal kapcsolatos adatait (beleértve az IP-címet is), ha letölti és telepíti a következő linken elérhető böngésző plugint. https://tools.google.com/dlpage/gaoptout?hl=hu
-
Hírlevél, DM tevékenység
-
A gazdasági reklámtevékenység alapvető feltételeiről és egyes korlátairól szóló 2008. évi XLVIII. törvény (Grt.) 6. §-a értelmében Felhasználó előzetesen és kifejezetten hozzájárulhat ahhoz, hogy Szolgáltató reklámajánlataival, egyéb küldeményeivel a regisztrációkor megadott elérhetőségein megkeresse. Jelen fejezetben előforduló hírlevél kifejezés alatt adatkezelő valamennyi - a Grt. hatálya alá tartozó - üzenetér érteni kell (pl. hirdetésfigyelő, vadász funkció, leendő partnereknek küldött üzenetek).
-
Továbbá Ügyfél a jelen tájékoztató rendelkezéseit szem előtt tartva hozzájárulhat ahhoz, hogy Szolgáltató a reklámajánlatok küldéséhez szükséges személyes adatait kezelje.
-
Szolgáltató nem küld kéretlen reklámüzenetet, és Felhasználó korlátozás és indokolás nélkül, ingyenesen leiratkozhat az ajánlatok küldéséről. Ebben az esetben Szolgáltató minden - a reklámüzenetek küldéséhez szükséges - személyes adatát törli nyilvántartásából és további reklámajánlataival nem keresi meg a Felhasználót. Felhasználó a reklámokról leiratkozhat az üzenetben lévő linkre kattintva.
-
Az információs önrendelkezési jogról és az információszabadságról szóló 2011. évi CXII. törvény 20. § (1) bekezdése alapján, meg kell határozni a hírlevél-küldés adatkezelése körében a következőket:
a) az adatgyűjtés ténye,
b) az érintettek köre,
c) az adatgyűjtés célja,
d) az adatkezelés időtartama,
e) az adatok megismerésére jogosult lehetséges adatkezelők személye,
f) az érintettek adatkezeléssel kapcsolatos jogainak ismertetése.
-
Az adatkezelés ténye, a kezelt adatok köre: Név, e-mail cím, dátum, időpont.
-
Az érintettek köre: A hírlevélre feliratkozó valamennyi érintett.
-
Az adatkezelés célja: reklámot tartalmazó elektronikus üzenetek küldése az érintett részére, tájékoztatás nyújtása az aktuális információkról, ajánlatokról, ingatlanokról, akciókról, új funkciókról stb.
-
Az adatkezelés időtartama, az adatok törlésének határideje: a hozzájáruló nyilatkozat visszavonásáig, azaz a leiratkozásig tart az adatkezelés.
-
Az adatok megismerésére jogosult lehetséges adatkezelők személye: A személyes adatokat az adatkezelő munkatársai kezelhetik, a fenti alapelvek tiszteletben tartásával.
-
Az adatkezelés nyilvántartási száma: NAIH-112840/2017.
-
Az érintettek adatkezeléssel kapcsolatos jogainak ismertetése: Az érintett bármikor, ingyenesen leiratkozhat a hírlevélről.
-
Az adatkezelés során igénybe vett adatfeldolgozók:
SalesAutopilot Kft.
Szolgáltatás: MailMaster
Székhely: Golgota utca 3., Budapest, H-1089
Cím: 1024 Budapest, Margit krt. 31-33., félemelet 4.
Telefon: (+36) 30 624 39 34
Webrakéta Kft.
1111 Budapest, Lágymányosi út 12
Telefon: +36 (30) 37 38 706
E-mail: info@webraketa.hu
-
Az adatkezelés jogalapja: az érintett önkéntes hozzájárulása, az Infotv. 5. § (1) bekezdése, és a gazdasági reklámtevékenység alapvető feltételeiről és egyes korlátairól szóló 2008. évi XLVIII. törvény 6. § (5) bekezdése:
A reklámozó, a reklámszolgáltató, illetve a reklám közzétevője – a hozzájárulásban meghatározott körben - a náluk hozzájáruló nyilatkozatot tevő személyek személyes adatairól nyilvántartást vezet. Az ebben a nyilvántartásban rögzített - a reklám címzettjére vonatkozó - adat csak a hozzájáruló nyilatkozatban foglaltaknak megfelelően, annak visszavonásáig kezelhető, és harmadik fél számára kizárólag az érintett személy előzetes hozzájárulásával adható át.
Közösségi oldalak
-
Az információs önrendelkezési jogról és az információszabadságról szóló 2011. évi CXII. törvény 20. § (1) bekezdése alapján, meg kell határozni a közösségi oldalak adatkezelése körében a következőket:
a) az adatgyűjtés ténye,
b) az érintettek köre,
c) az adatgyűjtés célja,
d) az adatkezelés időtartama,
e) az adatok megismerésére jogosult lehetséges adatkezelők személye,
f) az érintettek adatkezeléssel kapcsolatos jogainak ismertetése.
-
Az adatgyűjtés ténye, a kezelt adatok köre: Facebook/Google+/Twitter/Pinterest/Youtube/Instagram stb. közösségi oldalakon regisztrált neve, illetve a felhasználó nyilvános profilképe.
-
Az érintettek köre: Valamennyi érintett, aki regisztrált a Facebook/Google+/Twitter/Pinterest/Youtube/Instagram stb. közösségi oldalakon, és „lájkolta” a weboldalt.
-
Az adatgyűjtés célja: A közösségi oldalakon, a weboldal egyes tartalmi elemeinek, termékeinek, akcióinak vagy magának a weboldalnak a megosztása, illetve „lájkolása”, népszerűsítése.
-
Az adatkezelés időtartama, az adatok törlésének határideje, az adatok megismerésére jogosult lehetséges adatkezelők személye és az érintettek adatkezeléssel kapcsolatos jogainak ismertetése: Az adatok forrásáról, azok kezeléséről, illetve az átadás módjáról, és jogalapjáról az adott közösségi oldalon tájékozódhat az érintett. Az adatkezelés a közösségi oldalakon valósul meg, így az adatkezelés időtartamára, módjára, illetve az adatok törlési és módosítási lehetőségeire az adott közösségi oldal szabályozása vonatkozik.
-
Az adatkezelés jogalapja: az érintett önkéntes hozzájárulása személyes adatai kezeléséhez a közösségi oldalakon.
Ügyfélkapcsolatok és egyéb adatkezelések
-
Amennyiben az adatkezelő szolgáltatásaink igénybevétele során kérdés merülne fel, esetleg problémája lenne az érintettnek, az adatkezelő egyéb elérhetőségein (telefon, e-mail, közösségi oldalak stb.) kapcsolatba léphet az adatkezelővel.
-
Adatkezelő a beérkezett e-maileket, üzeneteket, telefonon, Facebook-on stb. megadott adatokat az érdeklődő nevével és e-mail címével, valamint más, önként megadott személyes adatával együtt, az érintett kérésére törli.
-
E tájékoztatóban fel nem sorolt adatkezelésekről az adat felvételekor adunk tájékoztatást.
-
Kivételes hatósági megkeresésre, illetőleg jogszabály felhatalmazása alapján más szervek megkeresése esetén a Szolgáltató köteles tájékoztatás adására, adatok közlésére, átadására, illetőleg iratok rendelkezésre bocsátására.
-
A Szolgáltató ezen esetekben a megkereső részére – amennyiben az a pontos célt és az adatok körét megjelölte – személyes adatot csak annyit és olyan mértékben ad ki, amely a megkeresés céljának megvalósításához elengedhetetlenül szükséges.
Adatbiztonság
-
Az adatkezelő úgy tervezi meg és hajtja végre az adatkezelési műveleteket, hogy biztosítsa az érintettek magánszférájának védelmét.
-
Az adatkezelő gondoskodik az adatok biztonságáról (jelszóval, vírusirtóval való védettség), megteszi azokat a technikai és szervezési intézkedéseket és kialakítja azokat az eljárási szabályokat, amelyek az Info tv., valamint az egyéb adat- és titokvédelmi szabályok érvényre juttatásához szükségesek.
-
Az adatokat megfelelő intézkedésekkel védi az adatkezelő különösen
-
a jogosulatlan hozzáférés,
-
a megváltoztatás,
-
a továbbítás,
-
a nyilvánosságra hozatal,
-
a törlés vagy megsemmisítés,
-
a véletlen megsemmisülés és sérülés,
-
az alkalmazott technika megváltozásából fakadó hozzáférhetetlenné válás ellen.
-
Az adatkezelő megfelelő technikai megoldással biztosítja, hogy a nyilvántartásokban tárolt adatok közvetlenül ne legyenek összekapcsolhatók és az érintetthez rendelhetők.
-
A személyes adatokhoz való jogosulatlan hozzáférés, az adatok megváltoztatása és jogosulatlan nyilvánosságra-hozatala, vagy felhasználása megakadályozása érdekében az adatkezelő gondoskodik:
-
-
a megfelelő informatikai, műszaki környezet kialakításáról, üzemeltetéséről,
-
-
a szolgáltatásnyújtásban résztevő munkatársai ellenőrzött kiválasztásáról, felügyeletéről,
-
a részletes üzemeltetési, kockázatkezelési és szolgáltatási eljárásrendek kiadásáról.
-
A fentiek alapján szolgáltató biztosítja, hogy az általa kezelt adat
-
a jogosult számára rendelkezésre álljon,
-
hitelessége és hitelesítése biztosított,
-
változatlansága igazolható legyen.
-
Adatkezelő és annak tárhely-szolgáltatójának informatikai rendszere véd többek között
-
a számítástechnikai csalás,
-
a kémkedés,
-
a számítógépvírusok,
-
a spam-ek,
-
a hack-ek
-
és egyéb támadások ellen.
-
Adatkezelő az alábbi konkrét adatbiztonsági intézkedéseket teszi:
-
A szolgáltató az elvárható nehézségű jelszavakkal dolgozik, melyek variáció lehetőségei minimum 628 (218 340 105 584 896).
-
A weboldalon található „belépés” nem teszi lehetővé az ügyféladatok elérését.
Az érintettek jogai
-
Az érintett kérelmezheti az Szolgáltatónál, hogy az adjon tájékoztatását személyes adatai kezeléséről, kérheti személyes adatainak helyesbítését, valamint kérheti személyes adatainak - a kötelező adatkezelés kivételével - törlését vagy zárolását.
-
Az érintett kérelmére az adatkezelő tájékoztatást ad az érintett általa kezelt, illetve az általa vagy rendelkezése szerint megbízott adatfeldolgozó által feldolgozott adatairól, azok forrásáról, az adatkezelés céljáról, jogalapjáról, időtartamáról, az adatfeldolgozó nevéről, címéről és az adatkezeléssel összefüggő tevékenységéről, az adatvédelmi incidens körülményeiről, hatásairól és az elhárítására megtett intézkedésekről, továbbá - az érintett személyes adatainak továbbítása esetén - az adattovábbítás jogalapjáról és címzettjéről.
-
Az adatkezelő - ha belső adatvédelmi felelőssel rendelkezik, a belső adatvédelmi felelős útján - az adatvédelmi incidenssel kapcsolatos intézkedések ellenőrzése, valamint az érintett tájékoztatása céljából nyilvántartást vezet, amely tartalmazza az érintett személyes adatok körét, az adatvédelmi incidenssel érintettek körét és számát, az adatvédelmi incidens időpontját, körülményeit, hatásait és az elhárítására megtett intézkedéseket, valamint az adatkezelést előíró jogszabályban meghatározott egyéb adatokat.
-
Az adatkezelő az adattovábbítás jogszerűségének ellenőrzése, valamint az érintett tájékoztatása céljából adattovábbítási nyilvántartást vezet, amely tartalmazza az általa kezelt személyes adatok továbbításának időpontját, az adattovábbítás jogalapját és címzettjét, a továbbított személyes adatok körének meghatározását, valamint az adatkezelést előíró jogszabályban meghatározott egyéb adatokat.
-
Felhasználó kérelmére Szolgáltató tájékoztatást ad az általa kezelt adatokról, azok forrásáról, az adatkezelés céljáról, jogalapjáról, időtartamáról, az esetleges adatfeldolgozó nevéről, címéről és az adatkezeléssel összefüggő tevékenységéről, továbbá - az érintett személyes adatainak továbbítása esetén - az adattovábbítás jogalapjáról és címzettjéről. Szolgáltató a kérelem benyújtásától számított legrövidebb idő alatt, legfeljebb azonban 25 napon belül írásban, közérthető formában adja meg a tájékoztatást. A tájékoztatás ingyenes.
-
Szolgáltató, amennyiben a személyes adat a valóságnak nem felel meg, és a valóságnak megfelelő személyes adat az adatkezelő rendelkezésére áll, a személyes adatot helyesbíti.
-
Törlés helyett Szolgáltató zárolja a személyes adatot, ha a Felhasználó ezt kéri, vagy ha a rendelkezésére álló információk alapján feltételezhető, hogy a törlés sértené a Felhasználó jogos érdekeit. A zárolt személyes adat kizárólag addig kezelhető, ameddig fennáll az az adatkezelési cél, amely a személyes adat törlését kizárta.
-
Szolgáltató törli a személyes adatot, ha kezelése jogellenes, a Felhasználó kéri, a kezelt adat hiányos vagy téves - és ez az állapot jogszerűen nem orvosolható - feltéve, hogy a törlést törvény nem zárja ki, az adatkezelés célja megszűnt, vagy az adatok tárolásának törvényben meghatározott határideje lejárt, azt a bíróság vagy a Nemzeti Adatvédelmi és Információszabadság Hatóság elrendelte.
-
Az adatkezelő megjelöli az általa kezelt személyes adatot, ha az érintett vitatja annak helyességét vagy pontosságát, de a vitatott személyes adat helytelensége vagy pontatlansága nem állapítható meg egyértelműen.
-
A helyesbítésről, a zárolásról, a megjelölésről és a törlésről az érintettet, továbbá mindazokat értesíteni kell, akiknek korábban az adatot adatkezelés céljára továbbították. Az értesítés mellőzhető, ha ez az adatkezelés céljára való tekintettel az érintett jogos érdekét nem sérti.
-
Ha az adatkezelő az érintett helyesbítés, zárolás vagy törlés iránti kérelmét nem teljesíti, a kérelem kézhezvételét követő 25 napon belül írásban közli a helyesbítés, zárolás vagy törlés iránti kérelem elutasításának ténybeli és jogi indokait. A helyesbítés, törlés vagy zárolás iránti kérelem elutasítása esetén az adatkezelő tájékoztatja az érintettet a bírósági jogorvoslat, továbbá a Hatósághoz fordulás lehetőségéről.
Jogorvoslat
-
Felhasználó tiltakozhat személyes adatának kezelése ellen, ha
-
a személyes adatok kezelése vagy továbbítása kizárólag az Szolgáltatóra vonatkozó jogi kötelezettség teljesítéséhez, vagy az Szolgáltató, adatátvevő vagy harmadik személy jogos érdekének érvényesítéséhez szükséges, kivéve, ha az adatkezelést törvény rendelte el;
-
a személyes adat felhasználása vagy továbbítása közvetlen üzletszerzés, közvélemény-kutatás vagy tudományos kutatás céljára történik;
-
törvényben meghatározott egyéb esetben.
-
Szolgáltató a tiltakozást a kérelem benyújtásától számított legrövidebb időn belül, de legfeljebb 15 nap alatt megvizsgálja, annak megalapozottsága kérdésében döntést hoz, és döntéséről a kérelmezőt írásban tájékoztatja. Ha az Szolgáltató az érintett tiltakozásának megalapozottságát megállapítja, az adatkezelést - beleértve a további adatfelvételt és adattovábbítást is - megszünteti, és az adatokat zárolja, valamint a tiltakozásról, továbbá az annak alapján tett intézkedésekről értesíti mindazokat, akik részére a tiltakozással érintett személyes adatot korábban továbbította, és akik kötelesek intézkedni a tiltakozási jog érvényesítése érdekében.
-
Amennyiben a Felhasználó Szolgáltatónak a meghozott döntésével nem ért egyet, az ellen - annak közlésétől számított 30 napon belül - bírósághoz fordulhat. A bíróság soron kívül jár el.
-
Az adatkezelő esetleges jogsértése ellen panasszal a Nemzeti Adatvédelmi és Információszabadság Hatóságnál lehet élni:
Nemzeti Adatvédelmi és Információszabadság Hatóság
1125 Budapest, Szilágyi Erzsébet fasor 22/C.
Levelezési cím: 1530 Budapest, Postafiók: 5.
Telefon: +36 -1-391-1400
Fax: +36-1-391-1410
E-mail: ugyfelszolgalat@naih.hu
Bírósági jogérvényesítés
-
Azt, hogy az adatkezelés a jogszabályban foglaltaknak megfelel, az adatkezelő köteles bizonyítani. Az adattovábbítás jogszerűségét az adatátvevő köteles bizonyítani.
-
A per elbírálása a törvényszék hatáskörébe tartozik. A per - az érintett választása szerint - az érintett lakóhelye vagy tartózkodási helye szerinti törvényszék előtt is megindítható.
-
A perben fél lehet az is, akinek egyébként nincs perbeli jogképessége. A perbe a Hatóság az érintett pernyertessége érdekében beavatkozhat.
-
Ha a bíróság a kérelemnek helyt ad, az adatkezelőt a tájékoztatás megadására, az adat helyesbítésére, zárolására, törlésére, az automatizált adatfeldolgozással hozott döntés megsemmisítésére, az érintett tiltakozási jogának figyelembevételére, illetve az adatátvevő által kért adat kiadására kötelezi.
-
Ha a bíróság az adatátvevő kérelmét elutasítja, az adatkezelő köteles az érintett személyes adatát az ítélet közlésétől számított 3 napon belül törölni. Az adatkezelő köteles az adatokat akkor is törölni, ha az adatátvevő a meghatározott határidőn belül nem fordul bírósághoz.
-
A bíróság elrendelheti ítéletének - az adatkezelő azonosító adatainak közzétételével történő - nyilvánosságra hozatalát, ha azt az adatvédelem érdekei és nagyobb számú érintett védett jogai megkövetelik.
Kártérítés és sérelemdíj
-
Ha az adatkezelő az érintett adatainak jogellenes kezelésével vagy az adatbiztonság követelményeinek megszegésével az érintett személyiségi jogát megsérti, az érintett az adatkezelőtől sérelemdíjat követelhet.
-
Az érintettel szemben az adatkezelő felel az adatfeldolgozó által okozott kárért és az adatkezelő köteles megfizetni az érintettnek az adatfeldolgozó által okozott személyiségi jogsértés esetén járó sérelemdíjat is. Az adatkezelő mentesül az okozott kárért való felelősség és a sérelemdíj megfizetésének kötelezettsége alól, ha bizonyítja, hogy a kárt vagy az érintett személyiségi jogának sérelmét az adatkezelés körén kívül eső elháríthatatlan ok idézte elő.
-
Nem kell megtéríteni a kárt és nem követelhető a sérelemdíj annyiban, amennyiben a kár a károsult vagy a személyiségi jog megsértésével okozott jogsérelem az érintett szándékos vagy súlyosan gondatlan magatartásából származott.
Zárszó
A tájékoztató elkészítése során figyelemmel voltunk az alábbi jogszabályokra:
-
2011. évi CXII. törvény – az információs önrendelkezési jogról és az információszabadságról (a továbbiakban: Infotv.)
-
2001. évi CVIII. törvény – az elektronikus kereskedelmi szolgáltatások, valamint az információs társadalommal összefüggő szolgáltatások egyes kérdéseiről (főképp a 13/A. §-a)
-
2008. évi XLVII. törvény – a fogyasztókkal szembeni tisztességtelen kereskedelmi gyakorlat tilalmáról;
-
2008. évi XLVIII. törvény – a gazdasági reklámtevékenység alapvető feltételeiről és egyes korlátairól (különösen a 6.§-a)
-
2005. évi XC. törvény az elektronikus információszabadságról
-
2003. évi C. törvény az elektronikus hírközlésről (kifejezetten a 155.§-a)
-
16/2011. sz. vélemény a viselkedésalapú online reklám bevált gyakorlatára vonatkozó EASA/IAB-ajánlásról
-
A Nemzeti Adatvédelmi és Információszabadság Hatóság ajánlása az előzetes tájékoztatás adatvédelmi követelményeiről